1.9 HECTARES 4 BEDROOM HORSE PROPERTY JUST 10kms FROM BRISBANE CBD
25 Oswald Street, Hemmant offers a rare lifestyle opportunity which combines space, versatility and convenience. This sought after lifestyle pocket is set on a ...
25 Oswald Street, Hemmant offers a rare lifestyle opportunity which combines space, versatility and convenience. This sought after lifestyle pocket is set on a fully usable 1.9-hectare allotment.
The expansive property features a spacious 4-bedroom home with genuine dual-living capability, multiple fenced horse paddocks, and room for future improvements. Whether you are running horses, accommodating extended family, or simply craving all the benefits of acreage living whilst enjoying the superb experiences that Bayside has to offer, then this is one property to inspect.
Local Acreage Sales in the Area
489 Hemmant-Tingalpa Road - SOLD $3,150,000
205 Youngs Road, Hemmant - SOLD $3,150,000
1840 Wynnum Road, Wynnum West - SOLD $4,600,000
76 Foley Road, Hemmant - SOLD $4,800,000.
Key Property Features
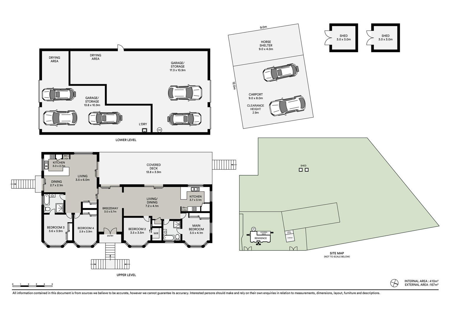
: Generous 4 bedroom layout all with built-ins designed for comfort and functionality.
: Dual-living configuration ideal for extended family, guests, or rental income
: 2 well-appointed kitchens servicing both ends of the home
: 2 Large Family Bathrooms – both with baths
: Multiple air-conditioned living zones providing separation and versatility
: Natural light-filled interiors with private acreage views from most areas
: Expansive rear Verandah (13.8m x 3.9m) offering uninterrupted paddock and landscape views
: Breezeway separating the two living zones
: Double sided double garaging underneath the home with extra space for additional cars, boats and/or trailers
: Expansive under house storage
: Solar Panels
: Air-Conditioned throughout
: Fully fenced secure dog's yard and horse paddocks
: Connected to all town services
: Fully fenced property
: Ample shade trees scattered throughout the property
Equine & Acreage Features
: Multiple fenced horse paddocks with excellent access and usability
: 60 x 20 grassed fenced off arena / paddock – perfect for dressage and/or training
: Polvin Fencing on all Paddocks – which stops major injuries if impacted by horses
: Extra large carport (9 x 12 x 2.9m height) which encompasses large vehicles storage and the horse shelter
: Powered 9m x 8m Carport x 2.9 height clearance – suitable for horse floats, caravans or boats
: 9m x 4m Horse Shelter - combined in the undercover area
: 2 x Storage Sheds each 3m x 3m – Ideal for Hay Storage
: Mainly flat, open land suitable for horses, hobby farming, trail/motorbike riding or additional infrastructure
: Plenty of Room for stables, sheds, arenas, or further improvements
: Wide access for floats, trucks, and machinery
: Agistment Suitability for further income
: 2 x large water tanks utilised for Animals and Gardens
Location Highlights
: 10kms to the Brisbane CBD, offering a rare blend of acreage living and urban convenience
: Walking Distance to the Hemmant Train Station
: 3.9km from Wynnum Pony Club and 6.1km from Gumdale Pony Club
: Transport options on your doorstep
: Travel distance to the International Airport is 5.7km and the Domestic Airport is 7.5km.
: Close to leading Private, Public and Independent schools. For example; Iona College at 2.6km and to Brisbane Grammar being – 11k. With an additional other 28 educational options in between.
: Sporting and Recreational Parks within walking distance
: Manly Boat Harbour and Wynnum Beach with all of its restaurants, cafes and attractions just 5km away
: Close proximity to major shopping centres – 2.8 km to Wynnum Plaza and Carindale Shopping Centre just 6km.
: Easy access to M1 for North and Southbound travel
: Night-time Gateway Bridge Views
Private, Public and Independent Schools within 11km from the property
Hemmant Flexible Learning - 600m
Tingalpa State School - 2.3km
Iona College - 2.6km
Moreton Bay Girls College - 3.2km
Moreton Bay Bays College - 5.1km
Guardian Angels School - 4.9km
Anglican Church Grammar (Churchie) - 8k
Brisbane Grammar School - 11km
Summerville House - 11km
Brisbane State High School - 11.km
Acreage opportunities of this size and quality, with dual-living and equine infrastructure, so close to the CBD are rarely offered to the market. This is a lifestyle purchase that delivers enjoyment, flexibility, and long-term value. If you are looking for space, privacy and a rural lifestyle whilst having the ease of accessibility to all amenities, then this property is a must to inspect.
Read more
Read Less