Grand Semi-Rural Family Estate with Luxury Entertaining & Commercial Opportunities
Expressions of Interest close Tues 28th April 2026 at 4:00PM
Custom created to celebrate the pinnacle of grand-scale semi-rural living, working, and ...
Expressions of Interest close Tues 28th April 2026 at 4:00PM
Custom created to celebrate the pinnacle of grand-scale semi-rural living, working, and entertaining, this exceptional 10-acre Pearcedale family domain is a rare offering. It showcases a beautifully renovated modern farmhouse, a stunning swimming pool and spa, an American barn-style luxury entertaining complex, and a permitted commercial depot, perfectly suited for a variety of home-based business ventures. Importantly, the yard has previously been appraised to achieve approximately $1,000 per week in rental income, adding further appeal for buyers seeking flexibility or additional revenue potential.
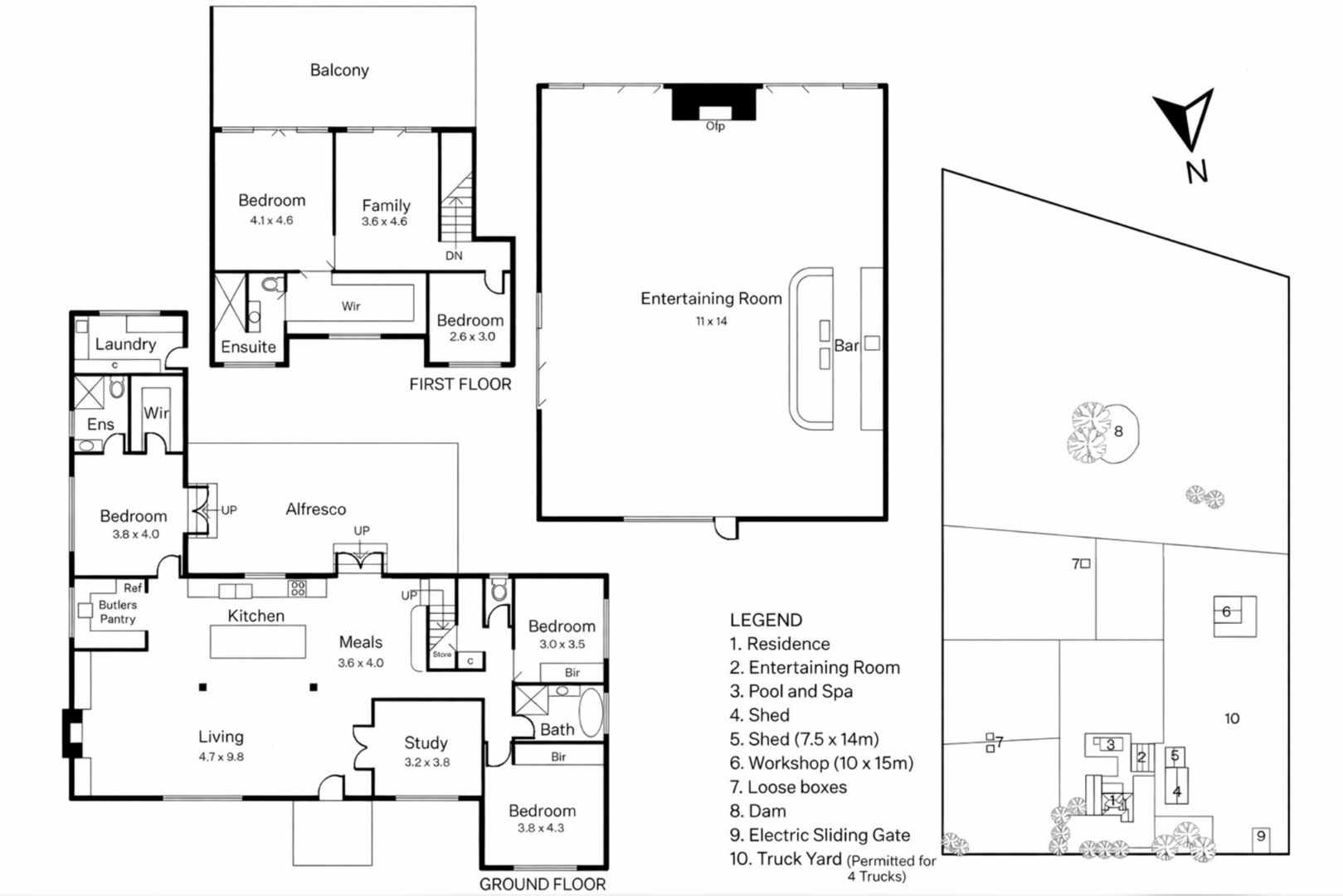
Privately positioned behind automated and coded security gates and mature hedges, the five-bedroom plus study double-storey home is set amidst landscaped gardens and has been freshly rendered and repainted in a sophisticated monochromatic palette. Inspired by modern American farmhouse design, the light-filled open-plan interiors feature re-surfaced original pine floorboards, a wood-fire heater set in marble surrounds, integrated large-screen TV, and bespoke joinery.
The farmhouse kitchen is a chef’s dream, boasting stone bench-tops with a central island, a butler’s pantry, a servery/wet bar, and a Falcon freestanding cooker. From here, enjoy breathtaking views of the alfresco terrace, heated swimming pool and spa set in architectural concrete surrounds, and rolling verdant pastures beyond. The adaptable layout, with five bedrooms and three luxuriously appointed bathrooms, plus a fitted home office and two living areas, is ideal for multi-generational family living. Master bedroom options exist on both levels, with the upper-level suite featuring a custom walk-in robe, double-shower ensuite, and undercover balcony accessible from both the main bedroom and second living/retreat area.
Superbly designed for entertaining, the newly constructed freestanding barn-style domain is approved as a Class 1A habitable building and boasts an impressive 7-star energy rating. It features polished aggregate floors, soaring barn ceilings adorned with deer antler chandeliers, a wood-fire heater set in stonework surrounds, integrated TV, and a custom curved stone wet bar complete with beer taps.
The property’s work yard/depot has a separate driveway entrance with an industrial-grade coded security gate, allowing access control and peace of mind. The depot holds an approved permit to operate as a contractor’s yard accommodating up to four trucks and thirteen work vehicles, with ample space for turning and parking large machinery. The site includes a truck wash bay andtwo work sheds/offices.
A substantial 10m x 15m shed with polished concrete floors is set up for mechanical or trade use. The shed is further equipped with solar panels and amenities including a toilet and shower, enhancing functionality for business or hobby use.
Ideal for equestrian pursuits, livestock, or hobby farming, the rolling green acreage incorporates five fenced paddocks, each serviced by automatic water feeders and supported by three shelters, plus a dam. A fenced kids’ play lawn at the front adds to the family-friendly appeal. Additional features include a full security system with 29 hardwired CCTV cameras, rooftop solar panels, ducted heating, ducted vacuum, heat pump heating of the pool and spa, and split-system heating and cooling throughout all buildings.
With convenient access to the Mornington Peninsula Freeway, this outstanding property offers the tranquility and space of rural living while remaining close to quality schools, shopping precincts, beaches, and transport links.
Homes and Acreage is proud to be offering this property for sale – To arrange an inspection or for further information, please contact Penny Perry on 0448 004 673.
Features:
• 10-acre Pearcedale lifestyle property with modern farmhouse residence
• Five bedrooms plus study, three bathrooms, two living areas
• Beautifully renovated home with American farmhouse styling
• Heated swimming pool and spa in architectural concrete surrounds
• Approved contractor’s depot permit for 4 trucks and 13 work vehicles with separate driveway access featuring industrial-grade coded security gate
• Yard previously appraised to achieve approximately $1,000 per week rental income
• Freestanding barn approved as Class 1A habitable building with 7-star energy rating
• Multiple sheds
• Solar panels installed on shed
• Toilet and shower facilities within shed
• Five fenced paddocks with automatic water feeders
• Three paddock shelters plus dam
• Full security system with coded gates and 29 hardwired CCTV cameras
• Ducted heating, ducted vacuum, split-system heating and cooling throughout
• Minutes to Mornington Peninsula Freeway, schools, shops, beaches, and transport
Read more
Read Less