93 Star and Arrow Road Cherry Gardens SA
4
2
4
Property ID: 20375
Acres: 10.53
Hectares: 4.26
Price per Acre: $81,677.62 Horse Features
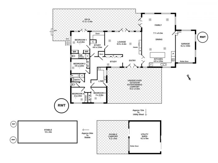
Property has stables which are not currently used as such but may be re-instated. The popular Tom Roberts Horse Trail passes right past the front gate.
Location
Address : Star and Arrow Road
Suburb : CHERRY GARDENS
State : South Australia
Postal Code :
Enviable Lifestyle in Tranquil Location
** Contact agent to view by appointment anytime over the school holidays**
(enter Star & Arrow Road from Ackland Hill Road, Coromandel East)
Peacefully ...
Read more
Property Features
Chicken coop
Land Improvements
Two fenced paddocks, stables, Mains water plus rainwater tanks connected to home. Utility shed with additional carport, fire pit, chicken coop.
