204 Powerscourt Street, Maffra VIC 3860
4
1
4
Property ID: 33444
Acres: 5.49
Hectares: 2.22
Location
Address : 204 Powerscourt Street
Suburb : MAFFRA
State : Victoria
Postal Code : 3860
˜Poplar Park™
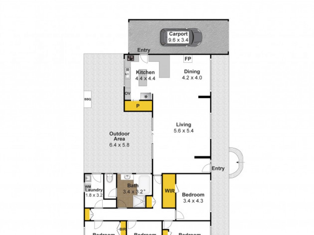
Very well maintained and immaculately presented, this 2.2 hectare property offers a semi-rural lifestyle on the edge of picturesque Maffra.
The substantial double brick home boasts high ceilings as well as timber and brick features throughout. The kitchen has recently been updated to include Smeg electric cooking, Caesarstone benchtops and walk in pantry. The meals area with wood heater leads through to the spacious lounge with club seating and built in speakers. The bedrooms comprise main wit...
The substantial double brick home boasts high ceilings as well as timber and brick features throughout. The kitchen has recently been updated to include Smeg electric cooking, Caesarstone benchtops and walk in pantry. The meals area with wood heater leads through to the spacious lounge with club seating and built in speakers. The bedrooms comprise main wit...
Read more
