170 Back Creek Road , High Camp VIC 3764
4
2
2
For Sale
$1,350,000 - $1,390,000
Property ID: 95002
Acres: 37.00
Hectares: 14.97
Horse Features
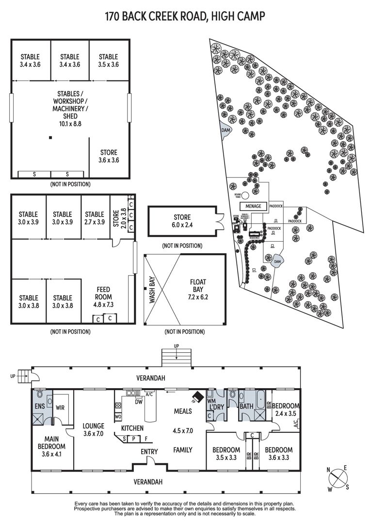
Horse property ∙ Olympic size 60 x 25m all-weather usage menage ∙ 5 paddocks ∙ 11 x 13m shed with 3 stallion safe stables ∙ 11 x 11m shed with 4 large stallion safe stables, tack room, feed room ∙ 6 x post and rail yards with 4 housing walk in walk out shelters ∙ 15m fully rubber lined round yard ∙ Hot and cold horse wash ∙ 2 x dams, one spring fed to automatic water troughs
Location
Address : 170 Back Creek Road
Suburb : HIGH CAMP
State : VICTORIA
Postal Code : 3764
Make more of the journey.
Make more of :
∙ 'Black Ridge Stables' ∙ 37 acres [approx.] ∙ Horse property ∙ Olympic size 60 x 25m all-weather usage menage ∙ 5 paddocks ∙ 11 x 13m shed with 3 stallion safe stables ∙ 11 x 11m shed with 4 large stallion safe stables, tack room, feed room ∙ Sheds with LED lighting ∙ Shipping container for storage ∙ Four bedroom home ∙ Two bathrooms ∙ Two living areas ∙ 7 x 6m float shed ∙ Automatic solar front gates ∙ Ornamental pear lined driveway ∙ LED downlig...
∙ 'Black Ridge Stables' ∙ 37 acres [approx.] ∙ Horse property ∙ Olympic size 60 x 25m all-weather usage menage ∙ 5 paddocks ∙ 11 x 13m shed with 3 stallion safe stables ∙ 11 x 11m shed with 4 large stallion safe stables, tack room, feed room ∙ Sheds with LED lighting ∙ Shipping container for storage ∙ Four bedroom home ∙ Two bathrooms ∙ Two living areas ∙ 7 x 6m float shed ∙ Automatic solar front gates ∙ Ornamental pear lined driveway ∙ LED downlig...
Read more
