4 Apex Road Swanport SA 5253
4
1
6
Sold 17/11/2025
Property ID: 96313
Acres: 2.68
Hectares: 1.09

Ray White Mount Barker
Mt Barker Homemaker /6 Dutton Road MOUNT BARKER 5251
Phone: 08 8391 6866
Location
Address : Apex Road
Suburb : SWANPORT
State : South Australia
Postal Code : 5253
An Icon of Distinction - Where Timeless Character Meets Contemporary Luxury
Rising proudly amid the picturesque landscapes of Swanport, 4 Apex Road stands as a residence of rare distinction - a home that effortlessly marries the grandeu ...
Rising proudly amid the picturesque landscapes of Swanport, 4 Apex Road stands as a residence of rare distinction - a home that effortlessly marries the grandeur of traditional craftsmanship with the refinement of modern living. Quite simply, it is one of the most exceptional lifestyle offerings ever to grace the Murray Bridge region. Spanning over a well manicured 10,857m2 it simply is the epitome of the ultimate lifestyle.
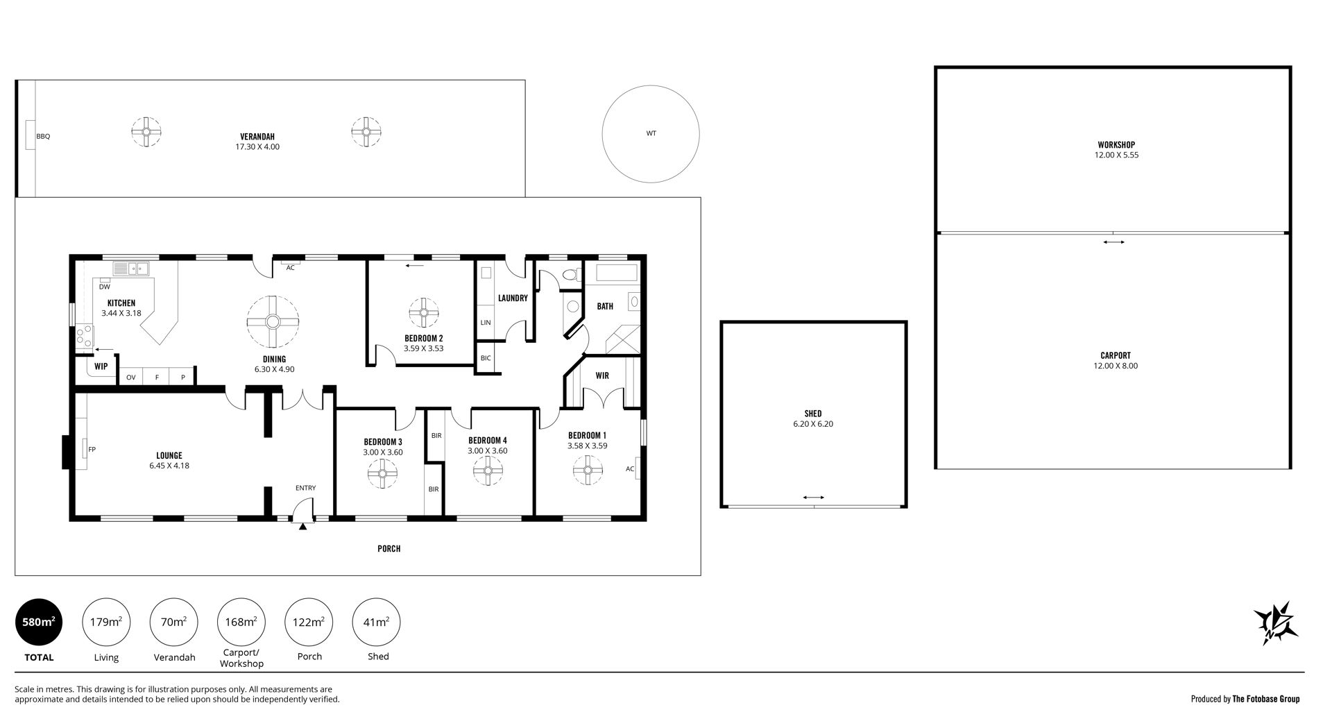
From its commanding appeal upon entering the driveway to the warmth of its interiors, every element of this home speaks to quality and enduring style. The double-brick construction, 3.2-metre ceilings, and exposed brickwork evoke a sense of heritage and permanence, while the elegant bullnose verandah wraps gracefully around the home, framing panoramic views across rolling farmland that stretch to the horizon.
Inside, the home unfolds with effortless sophistication. The state-of-the-art kitchen sets a new benchmark in contemporary design - a stunning centrepiece that flows seamlessly into light-filled living spaces. Each of the four bedrooms has been thoughtfully appointed for comfort and style, and the renovated bathroom balances timeless elegance with modern finesse.
Outdoors, the property transforms into an entertainer's sanctuary. The expansive alfresco zone is designed for unforgettable gatherings, framed by meticulously landscaped gardens and surrounded by the natural beauty of the countryside. The addition of six-car shedding completes the picture - a nod to both practicality and prestige.
Key Features:
• Double-brick construction
• Exposed brick accents
• 3.2m ceilings
• 209m2 of shedding space
• 70m2 verandah space with outdoor kitchen and lighting and ceiling fans
• Slate entrance tiling
• Feature lighting throughout
• Spacious living area with open fireplace
• Timber feature ceilings
• Ceiling fans throughout
• Two split-system air conditioners
• Stylish kitchen with:
• 4-burner cooktop
• Fisher & Paykel dishwasher
• Detachable mixer tap
• Walk-in pantry
• Microwave provision
• Four bedrooms
• Master with walk-in robe and ceiling fan
• Bedrooms 2 & 3 with built-in robes and ceiling fans
• Bedroom 4/study with ceiling fan
• Ample storage including hallway and laundry storage
• Thoughtfully designed lighting and finishes
Perfectly positioned in one of Swanport's most desirable pockets, this remarkable home delivers the ultimate in space, sophistication, and serenity. A property of this calibre is seldom offered and will capture the hearts of those who seek a truly distinguished country lifestyle.
Conveniently located just 5 minutes to facility-rich Murray Bridge and an easy 1-hour freeway commute to the City of Adelaide.
Disclaimer: All information provided has been obtained from sources we believe to be accurate, however, we cannot guarantee the information is accurate and we accept no liability for any errors or omissions (including but not limited to - property land size, floor plans and size, building age and condition). Interested parties should make their own enquiries and obtain their own legal and financial advice. RLA 278947
Read more
Read Less
Property Features
- - 1 Bathrooms
- - 4 Bedrooms
- - 6 Garages
